Regulation BEFORE repealed by BC Reg 477/2003, effective January 1, 2004.
| B.C. Reg. 370/99 O.C. 1533/99 | Deposited November 12, 1999 effective December 1, 1999 |
Residential Tenancy Act
Rent Adjustment Regulation No. 2
Definitions and interpretation
1 In this regulation:
"Act" means the Residential Tenancy Act;
"capital expenditure" means a major expenditure
(a) that is made during the relevant 12 month period and that is non-recurring within a period of years that is reasonable for the type of expenditure,
(b) that is
(i) required to maintain the residential premises and residential property in a state of decoration and repair in order to comply with section 10 (1) of the Act,
(ii) required to protect or restore the physical integrity of the residential property, meet municipal or health and safety standards, replace or restore plumbing, heating, mechanical, electrical, ventilation or air conditioning systems in order to comply with section 10 (1) of the Act,
(iii) required to provide access for persons with disabilities,
(iv) an extraordinary levy by a strata corporation for major repairs, renovations, new services or facilities,
(v) required to promote energy or water use efficiency, or
(vi) for renovations, new services or facilities not required by section 10 (1) of the Act that have
(A) the written approval of the tenant, if the expenditure benefits only the tenant's residential premises, or
(B) the written approval of 2/3 of the tenants within the residential property who will benefit, and
(c) that is not an expenditure required because the residential property has not been properly maintained in the past or an expenditure for which the landlord has been or will be compensated by another person;
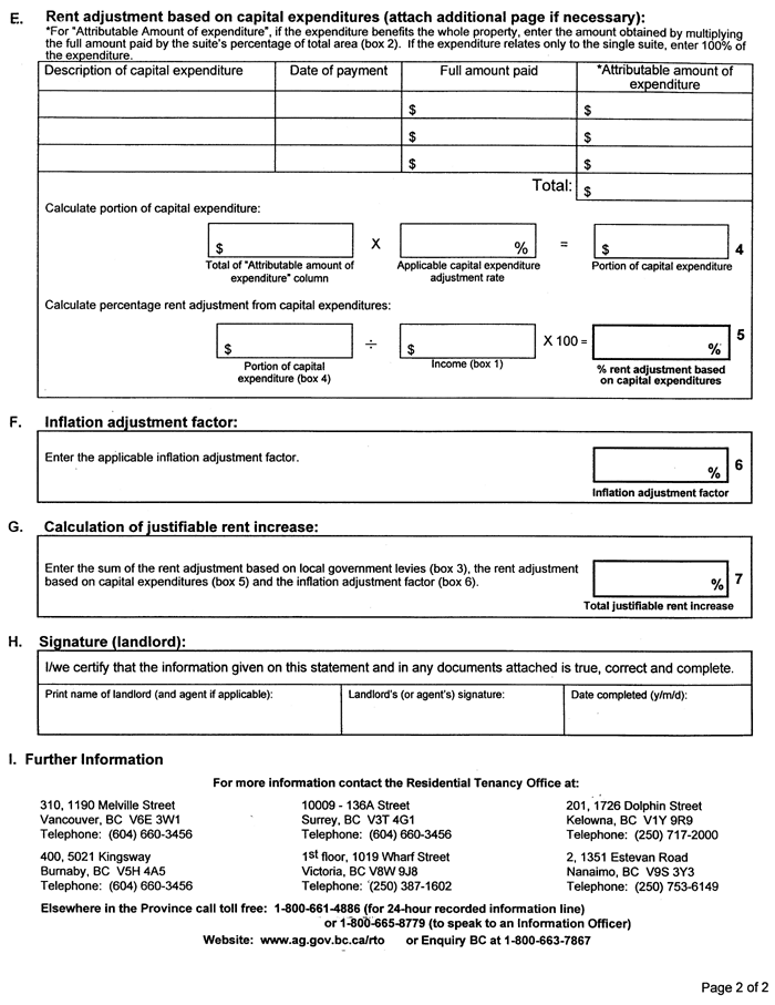
"inflation adjustment factor" means the applicable percentage in the Appendix;
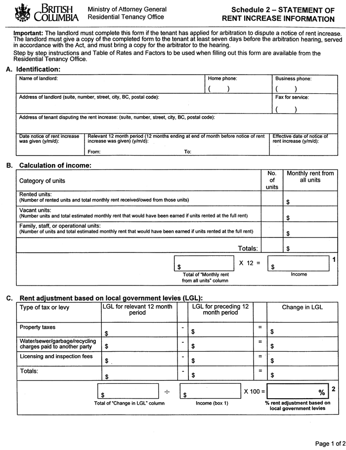
"local government levies" means
(a) the sum of the payments respecting the residential property made by the landlord during the relevant 12 month period for
(i) property taxes including school taxes, transit levies, and recycling, water, sewer or garbage fees payable to the local government,
(ii) recycling, water, sewer and garbage fees payable to a party other than the local government, and
(iii) licence or inspection fees related to the operation of the residential property and payable to a government authority, and
(b) if the residential property is a strata lot, the strata lot's share of payments for expenses listed under paragraph (a) (i) to (iii) made by the strata corporation during the relevant 12 month period unless the tenant is responsible for paying that cost under the tenancy agreement;
"relevant 12 month period" means the 12 months ending at the end of the month before the month in which notice under section 24 (3) of the Act was given.
Part 1 - Calculation of Justifiable Rent Increase
Definitions
2 In this Part:
"income" means the estimated annual income from rent derived by the landlord from the residential property and is calculated by using the following formula:
| income = monthly rent x 12 |
"monthly rent" means the sum of,
(a) for each residential premises for which the tenant is not a relative, employee or agent of the landlord, the rent payable for the last month of the relevant 12 month period, and
(b) for each residential premises that is vacant, occupied by the landlord, or for which the tenant is a relative, employee or agent of the landlord, the greater of
(i) the rent payable for the last month of the relevant 12 month period, or
(ii) the rent payable for the last month of the relevant 12 month period for an equivalent residential premises in the residential property or, if there is no equivalent residential premises, the estimated rent calculated by using the following formula:
| estimated rent = | total amount calculated under paragraph (a) | x | floor area of unit for which estimated rent is calculated |
| total floor area of all residential premises described in paragraph (a) |
Percentage rent adjustment based on change in local government levies
3 (1) The percentage rent adjustment based on change in local government levies is calculated by using the following formula:
| % rent adjustment = | change in local government levies | x | 100 |
| income |
in which
"change in local government levies" means local government levies less the local government levies for the previous 12 month period.
(2) If a tax, levy or fee that is included in local government levies or the equivalent for the preceding 12 months is one that is incurred at less than annual intervals, that tax, levy or fee must be represented on an annual basis when calculating change in local government levies under this section.
Percentage rent adjustment based on capital expenditures
4 The percentage rent adjustment based on capital expenditures is calculated by using the following formula:
| % rent adjustment = | portion of capital expenditure | x | 100 |
| (applicable monthly rent x 12) |
in which
"portion of capital expenditure" means the amount obtained by multiplying the capital expenditure by the applicable capital expenditure adjustment rate set in the Appendix;
"applicable monthly rent" means the sum of
(a) for each residential premises that benefits from the capital expenditure, and for which the tenant is not a relative, employee or agent of the landlord, the rent payable for the last month of the relevant 12 month period, and
(b) for each residential premises that benefits from the capital expenditure and is vacant, occupied by the landlord, or for which the tenant is a relative, employee or agent of the landlord, the greater of
(i) the rent payable for the last month of the relevant 12 month period, or
(ii) the rent payable for the last month of the relevant 12 month period for an equivalent residential premises in the residential property or, if there is no equivalent residential premises, the estimated rent calculated by using the following formula:
| estimated rent = | total amount calculated under paragraph (a) | x | floor area of unit for which estimated rent is calculated |
| total floor area of all residential premises described in paragraph (a) |
Calculation of justifiable rent increase
5 The justifiable rent increase for the purposes of sections 26 and 27 of the Act is the sum of the inflation adjustment factor and the percentage rent adjustments calculated under sections 3 and 4 of this regulation.
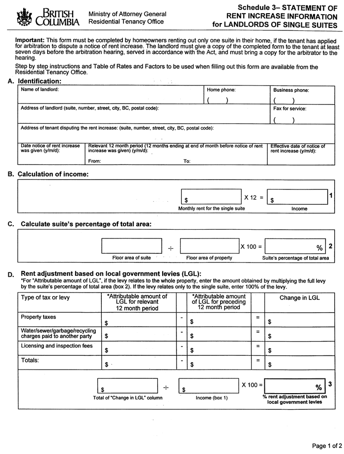
Part 2 - Calculation of Justifiable Rent Increase for Single Suites
Application of Part 2
6 Despite Part 1, the justifiable rent increase for the purposes of sections 26 and 27 of the Act must be calculated according to this Part if the rent increase is for a single suite as defined in this Part.
Definitions
7 In this Part:
"attributable amount" of local government levies or capital expenditure means
(a) if the local government levy or capital expenditure relates entirely to the single suite, 100% of the local government levy or capital expenditure, and
(b) if the local government levy or capital expenditure relates to both a single suite and other parts of the residential property in which the single suite is located, the percentage of the local government levy or capital expenditure calculated by using the following formula:
| % = | floor area of the single suite | x | 100 |
| floor area of residential property |
"income" means the estimated annual income from rent derived by the landlord from the single suite and is calculated by using the following formula:
| income = monthly rent x 12 |
"monthly rent" means the rent for the single suite for the month before the month in which the notice under section 24 (3) of the Act was given;
"single suite" means a rented residential premises within a residential property but only if
(a) the landlord is the owner of and resides on the residential property, and
(b) there is only one rented residential premises within the residential property.
Percentage rent adjustment based on change in local government levies
8 (1) The percentage rent adjustment based on change in local government levies is calculated by using the following formula:
| % rent adjustment = | change in local government levies | x | 100 |
| income |
in which
"change in local government levies" means the attributable amount of local government levies less the attributable amount of local government levies for the preceding 12 month period.
(2) If a tax, levy or fee that is included in the attributable amount of local government levies or the equivalent for the preceding 12 months is one that is incurred at less than annual intervals, that tax, levy or fee must be represented on an annual basis when calculating change in local government levies under subsection (1).
Percentage rent adjustment based on capital expenditures
9 The percentage rent adjustment based on capital expenditures is calculated by using the following formula:
| % rent adjustment = | portion of capital expenditure | x | 100 |
| income |
in which
"portion of capital expenditure" means the amount obtained by multiplying the attributable amount of the capital expenditure by the applicable capital expenditure adjustment rate set in the Appendix.
Calculation of justifiable rent increase
10 The justifiable rent increase for the purposes of sections 26 and 27 of the Act is the sum of the inflation adjustment factor and the percentage rent adjustments calculated under sections 8 and 9 of this regulation.
Prescribed forms
11 (1) The prescribed form of notice for use under section 24 (3) of the Act is set out in Schedule 1.
(2) The prescribed form of statement for use under section 25 (2) of the Act is set out in Schedule 2.
(3) Despite subsection (2), if the rent increase is for a single suite as defined in Part 2, the prescribed statement for use under section 25 (2) of the Act is set out in Schedule 3.
[en. B.C. Reg. 255/2002.]
Table of Inflation Adjustment Factors and
Rates under This Regulation
| Effective date of rent increase | ||
| January 1, 2002 to December 31, 2002 | On or after January 1, 2003 | |
| capital expenditure adjustment rate | 7.1% | 4.3% |
| inflation adjustment factor if the landlord does not pay for heating the residential property or residential premises with natural gas | 2.2% | 1.7% |
| inflation adjustment factor if the landlord pays for heating the residential property or residential premises with natural gas | 3.2% | 1.7% |






[Provisions of the Residential Tenancy Act, R.S.B.C. 1996, c. 406, relevant to the enactment of this regulation: sections 26 and 90]