Section 1 (1) definitions of "CMHC", "private household" and "rental vacancy rate" were added by BC Reg 152/2024, effective June 18, 2024.
Section 1 (2) BEFORE amended by BC Reg 152/2024, effective June 18, 2024.
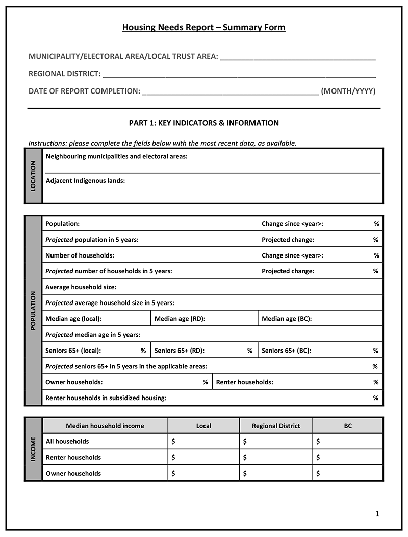
(2) If a definition in subsection (1) refers to a meaning in the Dictionary, Census of Population, 2016, published by Statistics Canada, the meaning must be applied with the necessary changes.
Section 3 (1) (a) (part) BEFORE amended by BC Reg 152/2024, effective June 18, 2024.
(a) the following information in each of the 3 most recent census reports:
Section 3 (1) (a) (iv) BEFORE repealed by BC Reg 152/2024, effective June 18, 2024.
(iv) the population, expressed as a number and as a percentage, in each of the following age groups:
Section 3 (1) (b) and (d) BEFORE repealed by BC Reg 152/2024, effective June 18, 2024.
(b) the population growth, expressed as a number and as a percentage, over the period of time that is covered in each of the 3 most recent census reports;
(d) if available, the number of individuals experiencing homelessness.
Section 3 (2) BEFORE amended by BC Reg 152/2024, effective June 18, 2024.
(2) For the purposes of section 574.2 (2) (a) [collection of statistical information about projected population] of the Act, the Council must collect the following statistical information for at least the next 5 years about the projected population of the city:
(a) the anticipated population;
(b) the anticipated population growth, expressed as a number and as a percentage;
(c) the average age of the anticipated population;
(d) the median age of the anticipated population;
(e) the anticipated population, expressed as a number and as a percentage, in each of the following age groups:
(vi) 85 years of age or older;
(f) the anticipated number of households;
(g) the anticipated average number of persons in a household.
Section 4 (part) BEFORE amended by BC Reg 152/2024, effective June 18, 2024.
Statistical information about household income
4 For the purposes of section 574.2 (2) (b) [collection of statistical information about household income] of the Act, the Council must collect the following statistical information in each of the 3 most recent census reports about before-tax household income in the city:
Section 4 (c), (d) and (e) BEFORE repealed by BC Reg 152/2024, effective June 18, 2024.
(c) the number and percentage of households in the following household income brackets:
(d) the number and percentage of renter households in each of the income brackets described in paragraph (c);
(e) the number and percentage of owner households in each of the income brackets described in paragraph (c);
Section 5 BEFORE re-enacted by BC Reg 152/2024, effective June 18, 2024.
Information about significant economic sectors
5 For the purposes of section 574.2 (2) (c) [collection of information about significant economic sectors] of the Act, the Council must collect the following information in each of the 3 most recent census reports about significant economic sectors in the city:
(a) the number of workers in the labour force;
(b) the number and percentage of workers working in each NAICS sector.
Section 6 (1) (d) and (h) BEFORE amended by BC Reg 152/2024, effective June 18, 2024.
(d) the number and percentage of housing units built in the following periods:
(vii) if available, 2017 onwards;
(h) subject to subsection (2), in relation to rental prices of housing units,
(i) the average median monthly rent, and
(ii) the average and median monthly rent for housing units of each type of housing unit prescribed under section 2;
Section 6 (1) (f), (g), (i), (j), (m) and (n) BEFORE repealed by BC Reg 152/2024, effective June 18, 2024.
(f) subject to subsection (2), in relation to values of housing units,
(i) the average and median housing values determined by BC Assessment,
(ii) the average and median housing value determined by BC Assessment for each dwelling structural type, and
(iii) the average and median housing value determined by BC Assessment for housing units of each type of housing unit prescribed under section 2;
(g) subject to subsection (2), in relation to the sale prices of housing units,
(i) the average and median sale prices determined by BC Assessment,
(ii) the average and median sale price of housing units determined by BC Assessment for each dwelling structural type, and
(iii) the average and median sale price for housing units determined by BC Assessment for housing units of each type of housing unit prescribed under section 2;
(i) the current rental vacancy rate;
(j) the rental vacancy rate for housing units of each type of housing unit prescribed under section 2;
(m) in relation to the demolition, in whole, of housing units, the following information for each year of the past 10 years, if available:
(i) the number of housing units demolished;
(ii) the number of housing units of each dwelling structural type demolished;
(iii) the number of housing units of each form of tenure demolished;
(iv) the number of housing units of each type of housing unit prescribed under section 2 demolished;
(n) in relation to the completion of housing units, the following information for each year of the past 10 years:
(i) the number of housing units substantially completed;
(ii) the number of housing units of each dwelling structural type substantially completed;
(iii) the number of housing units of each form of tenure substantially completed;
(iv) the number of housing units of each type of housing unit prescribed under section 2 substantially completed;
Section 6 (2) BEFORE repealed by BC Reg 152/2024, effective June 18, 2024.
(2) The Council must collect the information described in subsection (1) (f), (g) and (h)
(a) in relation to the first housing needs report, from 2005 onwards, and
(b) in relation to each subsequent housing needs report, for the past 10 years.
Section 6 (4) was added by BC Reg 152/2024, effective June 18, 2024.
Section 7 was renumberd as 7 (1) by BC Reg 152/2024, effective June 18, 2024.
Section 7 (1) (a) (part) BEFORE amended by BC Reg 152/2024, effective June 18, 2024.
(a) if available, the following information in relation to core housing need in each of the 3 most recent census reports:
Section 7 (2) was added by BC Reg 152/2024, effective June 18, 2024.
Section 8 was renumberd as 8 (1) by BC Reg 152/2024, effective June 18, 2024.
Section 8 (1) (a) (part) BEFORE amended by BC Reg 152/2024, effective June 18, 2024.
(a) the following information in each of the 3 most recent census reports:
Section 8 (1) (b) (vii) was added by BC Reg 152/2024, effective June 18, 2024.
Section 8 (1) (c) BEFORE repealed by BC Reg 152/2024, effective June 18, 2024.
(c) a summary in the form set out in the Schedule to this regulation.
Section 8 (1) (d) and (e) and (2) were added by BC Reg 152/2024, effective June 18, 2024.



