| Copyright (c) Queen's Printer, Victoria, British Columbia, Canada | Licence Disclaimer |
| B.C. Reg. 26/58 O.C. 1004/58 |
| This archived regulation consolidation is current to April 22, 2014 and includes changes enacted and in force by that date. For the most current information, click here. |
[includes amendments up to B.C. Reg. 239/2013, January 30, 2014]
Division 6 — Brake Regulations Respecting Buses, Trucks,
Truck Tractors and Commercial Trailers
6.01 In this Division, unless the context otherwise requires:
"bus" means a motor vehicle of a weight, when unloaded, of more than 2 800 kg, and which is designed, constructed and used for the transportation of more than 9 passengers;
"commercial trailer" means a trailer, or semitrailer, or house trailer, with a gross weight of more than 1 400 kg, but does not include a towed motor vehicle that weighs less than 2 000 kg and is less than 40% of the gross vehicle weight rating of a motor home towing it via a tow bar;
"truck" means a motor vehicle of a weight, when unloaded, of more than 2 800 kg, and which is designed or used exclusively for the transportation of goods;
"truck tractor" means a motor vehicle of a weight, when unloaded, of more than 2 800 kg, and which is designed and used for the towing of a trailer or semitrailer, and which is not designed or constructed to carry any load except a part of the weight of a semitrailer.
[am. B.C. Regs. 226/67, s. 5; 343/77; 109/97, s. 2.]
6.02 (1) In this section, "effective working order" means service brake performance of a vehicle that is not less than the standards set out in sections 23 and 24 of the Schedule to Division 7.
(2) A person must not operate a bus, truck, truck tractor or commercial trailer, or a combination of vehicles, on a highway at any time unless
(a) the vehicle or vehicle combination is, in accordance with these regulations, equipped with whatever braking equipment is required by this Division, and
(b) the service brakes required by this Division are in effective working order.
[en. B.C. Reg. 124/97.]
6.03 Every bus and every truck and every truck tractor shall be equipped with at least 2 separate braking systems, one of which shall be mechanical and shall include a ratchet and pawl or other effective locking and releasing mechanism.
[en. B.C. Reg. 69/59, s. (l).]
6.04 The separate braking systems of a truck or truck tractor shall not be in any way connected unless the systems are of such manufacture and design and are so installed that the failure of any part of a system to function properly will not affect the effectiveness of any other system.
[en. B.C. Reg. 69/59, s. (m).]
6.05 Every bus and every truck and every truck tractor shall be equipped with a parking brake as set forth in section 5.03 (1), and the parking brake shall be of such manufacture and design and so installed and maintained that the application thereof shall lock the rear driving wheels of the vehicle and shall be controlled separately from the service brakes of the vehicle.
6.06 (1) Every bus, truck, truck tractor and commercial trailer shall be equipped with a service brake on each wheel.
(2) Subsection (1) does not apply to
(a) Repealed. [B.C. Reg. 491/94, s. (b).]
(a.1) a motor vehicle which is being towed in a combination allowed under section 5.02 (6),
(b) a truck or a truck tractor which has 3 or more axles to the extent that
(i) if the vehicle may be steered by the wheels adjoined to one axle only, the front wheels need not be equipped with service brakes, or
(ii) if the vehicle may be steered by the wheels adjoined to more than one axle, only the wheels adjoined to one of such axles need be equipped with service brakes, or
(c) a house trailer with 3 or more axles which may be operated without service brakes on one axle as provided in section 5.02.
[am. B.C. Regs. 226/67, s. 6; 224/74, s. 2; 491/94, s. (b); 257/96, s. 2.]
6.07 (1) The service brakes with which a commercial trailer is equipped shall be of such manufacture and design and so installed and maintained that they will be applied automatically upon the separation of the commercial trailer from the vehicle by which it is being towed, and so that after such automatic application they will remain fully applied for not less than 15 minutes.
(2) Every air service brake system with which a trailer or semitrailer is equipped shall be of such manufacture and design and so installed and maintained that, by the use of no-bleed-back relay emergency valves or similar devices, back flow of air from the reservoir which supplies air for the service brakes shall be prevented.
(3) Every truck or truck tractor, if used to tow a commercial trailer equipped with brakes, shall be equipped with means for providing that in case of breakaway of such trailer the service brakes on the towing vehicle will be sufficiently operative to stop the towing vehicle.
(4) Every truck or truck tractor equipped with air brakes, while used to tow a commercial trailer, shall be equipped with not less than 2 means of applying the service brakes of the commercial trailer,
(a) one of which means shall be of such manufacture and design and so installed and maintained that such means will operate automatically upon the reduction of the air pressure of the service brake system of the truck or truck tractor below its fixed level, which shall be not less than 138 kPa and not more than 310 kPa,
(b) the other of which means, the method of operation of which shall be clearly indicated to the driver of the truck or truck tractor, shall be of such manufacture and design and so installed and maintained that such means may be controlled manually by the driver of the truck or truck tractor, and that the operation of such means shall not interfere with the effectiveness of the means specified in paragraph (a), and
(c) which means may be, but need not be, completely separate.
(5) Every truck or truck tractor used for towing a commercial trailer equipped with vacuum brakes shall, in addition to the control required under section 6.10, be equipped with a completely independent control, by the use of which the service brakes of the trailer may be operated.
(6) This section does not apply to a motor vehicle which is being towed in a combination allowed under section 5.02 (6).
[am. B.C. Regs. 69/59, s. (n); 343/77; 257/96, s. 3.]
6.08 Unless it is being transported in driveaway-towaway operations, every bus manufactured after March 31, 1959, and equipped with air brakes shall be so equipped that
(a) in the event that a break occurs in an air line forward of the driver's seat of the bus or in an air line leading to the front wheels of the bus, the air supply to each line can or will be shut off manually or automatically, and
(b) in such event, the driver is able to apply from the driver's seat the brakes on the rear wheels of the bus.
6.09 (1) Notwithstanding these regulations, means may be used for reducing the braking force applied to the front wheels of a bus, truck or truck tractor as compared to the braking force applied to the other wheels of the vehicle.
(2) No person shall use or operate, or cause to be used or operated, any means for reducing the braking force applied to the front wheels of a vehicle as compared to the braking force applied to the other wheels of the vehicle, except when weather conditions make such use or operation essential to safety.
6.10 (1) Subject to section 6.07 (3), every bus, truck, truck tractor, commercial trailer and combination of vehicles shall be equipped with a single control, by the operation of which all service brakes of the vehicle may be applied.
(2) Subsection (1) does not apply to a bus, truck, truck tractor, commercial trailer, combination of vehicles being transported in a driveaway-towaway operation or to a vehicle which is being towed in a combination allowed under section 5.02 (6).
[am. B.C. Reg. 257/96, s. 4.]
6.11 (1) Every bus, truck, truck tractor and commercial trailer equipped with air or vacuum brakes shall have a reservoir of such manufacture and design and so installed and maintained that, in the event of failure of the supply of air or of the vacuum, the brakes will, notwithstanding, be effective to stop the travel of the vehicle in accordance with these regulations.
(2) The reservoir with which any vehicle is equipped under subsection (1) shall be equipped with a check valve or a similar device effective to prevent leakage back to the source, thereby affecting or reducing the vacuum or air pressure in the reservoir.
(3) Subsection (1) does not apply to a vehicle equipped so that, in the event of failure of the air pressure or vacuum, the service brakes may be operated mechanically or hydraulically.
[am. B.C. Reg. 69/59, s. (o).]
6.12 (1) No person shall use or operate on a vehicle or combination of vehicles on a highway an air or vacuum brake unless the vehicle or combination of vehicles is so equipped that an audible or visible signal will be given to the driver of the vehicle or combination of vehicles in the event of failure of the air pressure or the vacuum to the extent that the effectiveness of the brakes of the vehicle or combination of vehicles is affected.
(2) In subsection (1), "an audible or visible signal" does not include the indication or signal given by a gauge.
6.13 Every system of air brakes on any vehicle shall be of such manufacture and design and so installed and maintained that, if either before or after a full application of the service brakes the compressor is stopped while the air pressure is at operating level, the air pressure will not decrease at a greater rate than 27 kPa per minute.
[am. B.C. Reg. 343/77.]
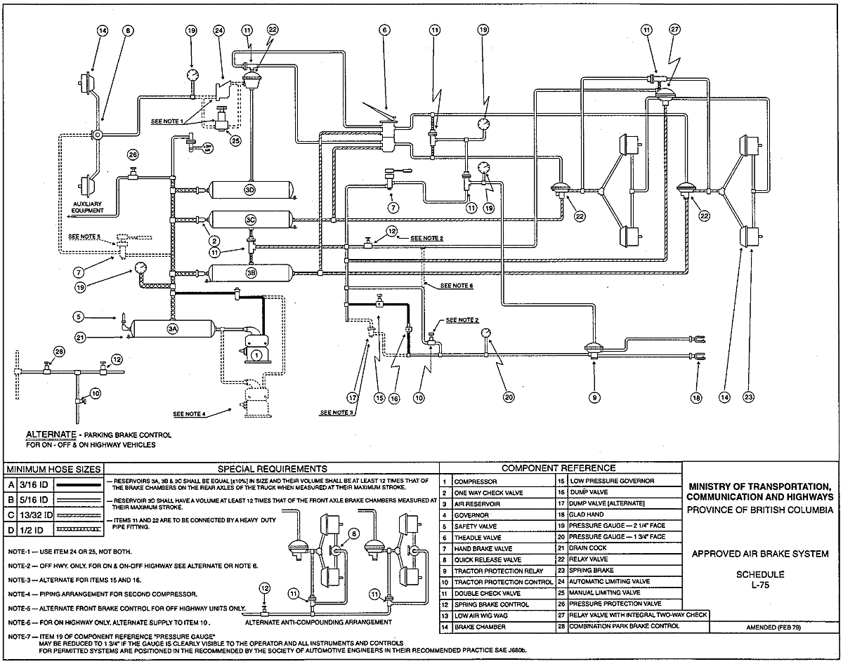
6.14 (1) Subject to subsection (2), after December 31, 1983, every truck or truck tractor that is licensed or the subject of a permit under section 6 of the Commercial Transport Act for a gross vehicle mass in excess of 57 000 kg shall be equipped with air brakes that conform to the "L.75" air brake diagram in Schedule 6.
(2) Where a truck or truck tractor is first so licensed or first the subject of such a permit prior to January 1, 1984, subsection (1) does not apply to it until after December 31, 1993.
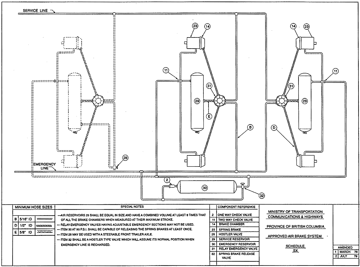
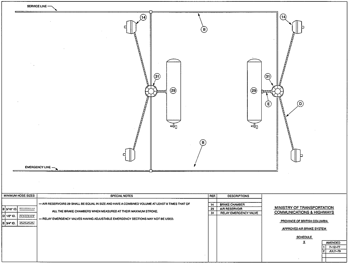
(3) Subject to subsection (4), after December 31, 1983, where a trailer or semitrailer is drawn by a truck tractor that is licensed or the subject of a permit under section 6 of the Commercial Transport Act for a gross vehicle mass in excess of 57 000 kg, the trailer or semitrailer shall be equipped with air brakes that conform to either the "SX" air brake diagram or the "X" air brake diagram in Schedule 6.
(4) Where a trailer or semitrailer described in subsection (3) is first so licensed or first the subject of such a permit prior to January 1, 1984, subsection (3) does not apply to it until after December 31, 1993.
(5) After December 31, 1983, where a combination of vehicles includes a truck or truck tractor that is required to conform to subsection (1) and each of the trailers or semitrailers in the combination of vehicles is required to conform to subsection (3), then the combination of vehicles shall be equipped so that the air pressure in each brake chamber of every axle of every vehicle, measured from the first movement of the service brake control,
(a) reached 414 kPa in not more than 0.45 seconds with an initial service reservoir (tank 3A) pressure of 690 kPa, and
(b) falls to 34 kPa in not more than 0.55 seconds with an initial service brake chamber air pressure of 655 kPa.
(6) Subsection (5) does not apply to a combination of motor vehicles that is incapable of achieving a licensed gross vehicle mass in excess of 57 000 kg while conforming to the requirements of Division 7 of the Commercial Transport Regulations, B.C. Reg. 30/78.
(7) Where a combination of vehicles includes a truck or truck tractor referred to in subsection (2), and each of the trailers or semitrailers in the combination of vehicles is one referred to in subsection (4), then the requirements of subsection (5) shall not apply to that combination of vehicles until January 1, 1994 but shall apply to that combination of vehicles on and after that date.
(8) A vehicle operated in the Province under the provisions of the International Registration Plan, the Canadian Agreement on Vehicle Registration or a non-resident 3 month permit issued under section 6.01 of the Commercial Transport Regulations, B.C. Reg. 30/78, shall be subject to the provisions of this section in the same manner as a vehicle that is licensed or the subject of a permit under section 6 of the Commercial Transport Act.
(9) This section does not apply to a combination of vehicles where a trailer or semitrailer is drawn by a truck tractor that is equipped with front axle brakes that comply with safety standards prescribed under the Motor Vehicle Safety Act (Canada).
[en. B.C. Reg. 5/83, s. 1; am. B.C. Regs. 49/88; 256/97, s. 2; 341/2004, s. 3.]
6.15 In the case of conflict between these regulations and those made under the Highway (Industrial) Act, the latter shall prevail.
[am. B.C. Reg. 5/83, s. 1.]
Approved Air Brake Systems
[en. B.C. Reg. 5/83, s. 3; am. B.C. Reg. 84/85.]
"L.75" Air Brake Diagram:

"SX" Air Brake Diagram:

"X" Air Brake Diagram:

Contents | Division 1-4 | Division 5 | Division 6 | Division 7-9 | Division 10-18 | Division 19-23 | Division 24-25 | Division 26-28 | Division 29 | Division 30-34 | Division 35-36 | Division 37-40 | Division 40A-42 | Division 43 | Division 44-47
Copyright (c) Queen's Printer, Victoria, British Columbia, Canada